
- 產品名稱:B252稱重給料機
- 產品編號:
- 產品概括:
- 使用精度:
一種高精度、高穩定性智能稱重系統 長期使用精度±0.2%

在各種工業生產過程中,都需要對某種物料,或多種物料進行定量給料,以保證穩定的生產過程或者精確的物料配比,這對于生產過程的順利完成以及產品質量的精確控制,均有著重要的意義。eacoor公司生產的稱重給料機就是專門為滿足各行業用戶的這種需要而設計的。B252系列稱重給料機稱重精確,運行可靠,可實現精確的定量給料,能幫助用戶減少物料的浪費,提高產品質量和生產過程的自動化。
eaccor稱重給料機,專用于水泥、化工、冶金等行業的連續稱重配料。該給料機裝有電子稱重裝置和變頻調速裝置,可在運行中對各種散狀物料進行準確的稱重及無級調速,以控制給料量。

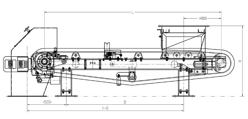
稱重皮帶給料機
皮帶給料機采用工字形梁作為主支承架,采用槽鋼作為支腿,整體剛度高,穩定性好。主支承架兩側設置皮帶防跑偏開關,以防皮帶跑偏。
為防止跑偏,從動滾筒采用膠面人字形,具有糾偏功能。
獨特的裙邊膠帶,可防止物料向兩側溢出,同時避免物料在頭部和尾部滾筒處累積,使稱重達到精確狀態。
進料口裝有料流整形料門,以調節料層厚度。
出料口處皮帶下部設有刮板,以清除皮帶上的附著物,提高稱重精度。
工作原理
膠帶給料機將經過皮帶上的物料,通過稱重秤架下的稱重傳感器進行檢測重量,以確定皮帶上的物料重量;裝在尾部滾筒或旋轉設備上的數字式測速傳感器,連續測量給料速度,該速度傳感器的脈沖輸出正比于皮帶速度;速度信號與重量信號一起送入皮帶給料機控制器,產生并顯示累計量/瞬時流量。給料控制器將該流量與設定流量進行比較,由控制器輸出信號控制變頻器調速,實現定量給料的要求。

系統性能參數
計量精度:優于±0.5%
控制精度:優于±1.0%
稱重秤架
EMC稱重式給料機采用B150型無杠桿全懸浮式秤架,結構簡單,不需維護。秤架結構保證無物料堆積,因此不會因此產生零點漂移,系統穩定性好。由于秤架采用全懸浮式結構,因此模擬標定的精度更高,往往可以代替實物標定。
測速傳感器

采用erccor特制的E850W低速型,安裝在從動滾筒上,防水型外殼設計。
流量范圍
50公斤/小時~1200噸/小時
皮帶寬度:500mm,650mm,800mm,1000mm,1200mm,1800mm,2200mm

自動配料系列
eaccor自動配料系列廣泛應用于鋼鐵、冶金、化工、水泥、食品等領域。

B252定量給料機現場
24小時服務:400-688-2588